| 中古住宅・中古マンション |
詳細はお問い合わせください。
掲載されていない物件もございます。お気軽にお問い合わせください。
|

|
 |
 |
| 所在地 |
東広島市安芸津町木谷字矢野浦 |
| 価 格 |
500万円 |
建築年月 |
1980
(昭和55)年
4月 |
| 構 造 |
木造瓦葺2階建 |
駐車場 |
1台可 |
| 地 積 |
146.18u
(約44.21坪) |
延床面積 |
112.08u
(約33.90坪) |
| 交 通 |
木谷隧道まで徒歩13分 |
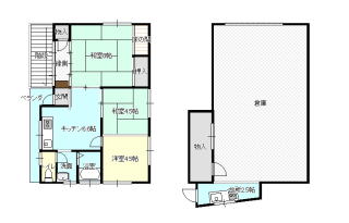
| 間 取 |
3DK |
現 状 |
空き家 |
| 上 水 |
公営 |
排水 |
汲み取り・放流 |
| 備 考 |
1F車庫/58.43u 2F居宅/53.65u
急傾斜警戒区域・急傾斜特別警戒区域内 |
※図面と相違がある場合は現況有姿となります。 |
|

|
|

|
 |
| 所在地 |
東広島市河内町下河内 |
| 価 格 |
750万円 |
建築年月 |
1971
(昭和46)年
10月 |
| 構 造 |
木造瓦葺2階建 |
駐車場 |
3台可 |
| 地 積 |
254.96u
(約77.12坪) |
延床面積 |
128.55u
(約38.88坪) |
| 交 通 |
JR山陽本線 河内駅まで徒歩5分 |
| 間 取 |
4DK |
現 状 |
居住中 |
| 上 水 |
公営 |
排水 |
公共下水 |
| 備 考 |
給湯灯油ボイラー、1F/94.57u 2F/33.98u |
 ※図面と相違がある場合は現況有姿となります。 |
|

|
 |
| 所在地 |
東広島市高屋町高屋堀 |
| 価 格 |
契約交渉中 |
建築年月 |
1982(S57)年
12月 |
| 構 造 |
軽量鉄骨造スレート葺平屋建 |
駐車場 |
2台可 |
| 地 積 |
217.56u
(約65.81坪) |
延床面積 |
84.14u
(約25.45坪) |
| 交 通 |
陽晃台入口バス停まで徒歩4分 |
| 間 取 |
3LDK |
現 状 |
空家 |
| 上 水 |
公営 |
排水 |
集中浄化槽 |
| 備 考 |
自治会費:500円/月、集中浄化槽管理費:10,000円/月 |
 ※図面と相違がある場合は現況有姿となります。 |
|

|
 |
| 所在地 |
東広島市福富町下竹仁 |
| 価 格 |
ご成約 |
建築年 |
1965(昭和40)年 |
| 構 造 |
木造瓦葺平屋建 |
駐車場 |
3台以上可 |
| 地 積 |
756.56u
(約228.85坪) |
延床面積 |
83.86u
(約25.36坪) |
| 交 通 |
森原橋バス停まで徒歩45分 |
| 間 取 |
5DK |
現 状 |
空家 |
| 上 水 |
私設(共同井戸) |
排水 |
浄化槽 |
| 備 考 |
・畑84u農転5条申請要
・納屋(木造2階、145.62u、昭和58年築)・倉庫(鉄骨造2階、85.90u、昭和55年築)・藏あり
・私設水道(共同井戸)500円/月
・田2筆798uあり |
 ※図面と相違がある場合は現況有姿となります。 |
|

|
 |
| 所在地 |
竹原市田ノ浦2丁目 |
| 価 格 |
中止 |
建築年月 |
1962(S37)年
9月 |
| 構 造 |
木造セメント瓦葺2階建 |
駐車場 |
軽1台可 |
| 地 積 |
161.98u
(約48.99坪) |
延床面積 |
108.26u
(約32.74坪) |
| 交 通 |
JR呉線 竹原駅まで徒歩20分 |
| 間 取 |
5DK |
現 状 |
空家 |
| 上 水 |
公営 |
トイレ |
汲み取り |
| 備 考 |
再建築不可(前面道路幅員1.9m) |
 ※図面と相違がある場合は現況有姿となります。 |
|

|
価格変更しました! |
 |
| 所在地 |
竹原市忠海長浜1丁目 |
| 価 格 |
650万円 |
建築年月 |
1982年6月 |
| 構 造 |
木造スレート葺平屋建 |
駐車場 |
1台可 |
| 地 積 |
1027.00u
(約310.66坪 |
延床面積 |
80.32u
(約24.29坪) |
| 交 通 |
JR呉線 安芸長浜駅まで徒歩5分 |
| 間 取 |
4DK |
現 状 |
空家 |
| 上 水 |
公営 |
排水 |
浄化槽 |
| 備 考 |
有効宅地面積65坪程度、その他法面等 |
※図面と相違がある場合は現況有姿となります。 |
|

|
価格変更しました! |
 |
| 所在地 |
東広島市河内町中河内字室木 |
| 価 格 |
880万円 |
建築年 |
1995(平成7)年 |
| 構 造 |
木造瓦葺2階建 |
駐車場 |
2台可 |
| 地 積 |
194.84u
(約58.93坪 |
延床面積 |
58.99u
(約17.84坪) |
| 交 通 |
JR山陽本線 河内駅まで徒歩3分 |
| 間 取 |
2DK |
現 状 |
空家 |
| 上 水 |
公営 |
排水 |
公共下水 |
| 備 考 |
離れあり(鉄筋コンクリ・木造瓦葺平屋、1994(平成6)年築) |
 ※図面と相違がある場合は現況有姿となります。 |
|

|
価格変更しました! |
 |
| 所在地 |
東広島市河内町中河内 |
| 価 格 |
380万円 |
建築年月 |
昭和53年4月 |
| 構 造 |
木造瓦葺2階建 |
駐車場 |
2台可 |
| 地 積 |
317.00u
(約95.89坪) |
延床面積 |
125.68u
(約38.01坪) |
| 交 通 |
JR山陽本線 河内駅まで徒歩12分 |
| 間 取 |
5DK |
現 状 |
空家 |
| 上 水 |
井戸(公営接続可) |
排水 |
浄化槽 |
| 備 考 |
河内小学校まで1100m |
 ※図面と相違がある場合は現況有姿となります。 |
|

|
 |
| 所在地 |
東広島市八本松町正力 |
| 価 格 |
480万円 |
建築年月 |
昭和56年6月 |
| 構 造 |
木造瓦葺平屋建 |
駐車場 |
なし |
| 地 積 |
366u
(約110.71坪) |
延床面積 |
64.59u
(約19.53坪) |
| 交 通 |
正力団地バス停まで徒歩5分 |
| 間 取 |
2LDK |
現 状 |
空家 |
| 上 水 |
公営 |
排水 |
集中浄化槽 |
| 備 考 |
日当たり良し、リフォーム要 |

※図面と相違がある場合は現況有姿となります。 |
|

|
| 少し高台の見晴らしのいい家 |
 |
| 所在地 |
庄原市東本町2丁目 |
| 価 格 |
750万円 |
建築年 |
昭和45年 8月 |
| 構 造 |
木造軽量鉄骨造2階建 |
駐車場 |
2台可 |
| 地 積 |
402.17u
(約121.65坪) |
延床面積 |
140.91u
(約42.62坪) |
| 交 通 |
上野公園東バス停まで 徒歩8分 |
| 間 取 |
6LDK |
現 状 |
空家 |
| 上 水 |
公営 |
排 水 |
公共下水 |
| 備 考 |
上野公園近く、眺望よし |

間取り図面と現状は若干異なる場合があります。 |
|

|
 |
| 所在地 |
東広島市高屋町造賀 |
| 価 格 |
中止 |
建築年月 |
1989(平成元)年9月 |
| 構 造 |
木造スレート葺2階建 |
駐車場 |
3台以上可 |
| 地 積 |
1,827.71u
(約552.88坪) |
延床面積 |
191.49u
(約57.92坪) |
| 交 通 |
小竹バス停まで徒歩3分 |
| 間 取 |
7DK |
現 状 |
空家 |
| 上 水 |
井戸 |
トイレ |
合併浄化槽 |
| 備 考 |
・農地(畑3筆)859u、山林6筆24,266uあり
・古屋(土蔵39.66u、農家住宅199.33u、風呂場6.05u、専用住宅52u)あり |
 ※図面と相違がある場合は現況有姿となります。 |
|

|
| |