Furniture drawing creation
家具図面作成


図面の資料等を戴いて家具図を作成致します。

プラス要素としまして過去の作図資料戴けますと助かります。

※弊社では現在、図面作成のみのお手伝いとさせて頂いております。

過去の作図集





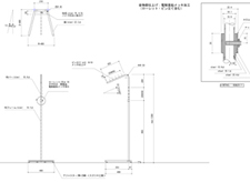
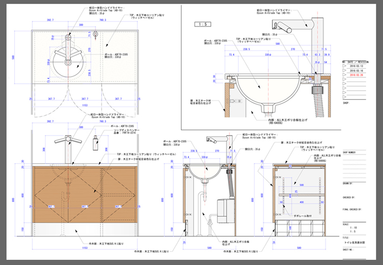
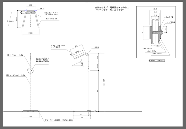
中央棚 中央棚 手洗い







アクセサリーケース カウンター 冷蔵ケースカバー







デザインシングルハンガーラック デザインシングルハンガーラック 斜めハンガーラック



 HOME



Interior design office designFactory・neo

copyright 2001 design Factory・neo All rights reserved.